Plot 30: The Clyde Collection – Type 3A - 3 Bedroom Home

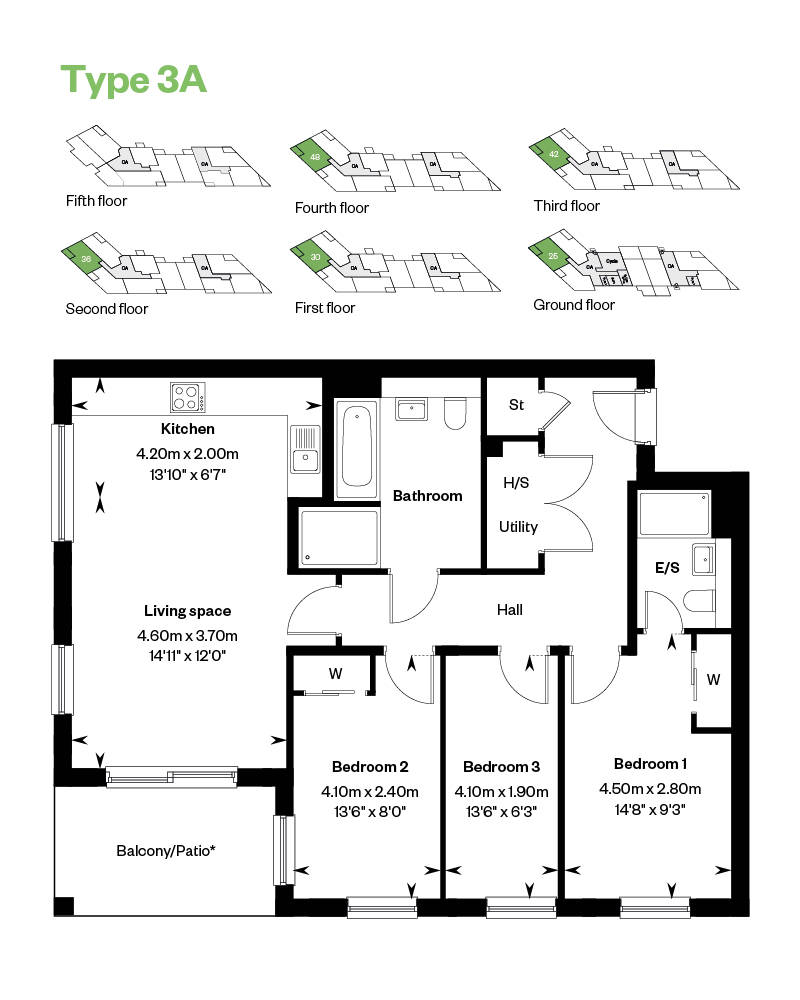
This superb 3-bedroom apartment combines style, luxury and comfort to complement your modern lifestyle.

The dual-aspect open plan living area features a designer kitchen with integrated Bosch appliances and full-height sliding patio doors leading to a private balcony. It truly is a fantastic space for relaxing or entertaining.

Both bedrooms 1 and 2 feature fitted wardrobes, whilst bedroom 1 is complemented by an en suite bathroom, which along with the main bathroom features contemporary sanitaryware and Porcelanosa tiling. Bedroom 3 is an ideal guest bedroom or home study.


HBF 5 Star Rated Builder New Consumer Code NHBC NHQC

The Foundry, Cathcart

Plot 30 | £374,000


  • 3 Bedrooms

  • 2 Bathrooms

  • 945 sq ft

  • The Clyde Collection – Type 3A

Tenure: Heritable

Service Charge: £909.32 P/A

Council Tax: Band Not Available

EPC Rating: C

Property Type: Apartment


Make an enquiry
Enlarged view
Images show photography from previous showhomes/CGIs to represent the space and layout - specification and finishes may differ. Speak to our sales team for more information.
Arrow up

Thank you.

A Cala sales representative will be in touch soon to discuss your enquiry.