Plot 46: Everglade – End - Terrace - 3 Bedroom Home

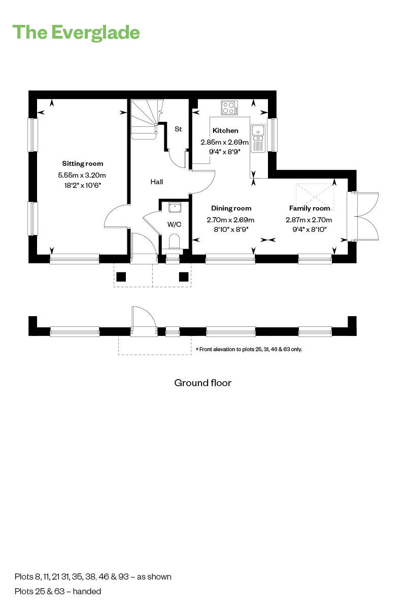
The highly spacious Everglade features interiors that are bathed in natural light, making everyday life a pleasure. With the dual aspect sitting room on one side of the hall and on the other is the similarly well-proportioned kitchen/dining/family room, also dual aspect and opening out to the fully-lawned garden through French doors.

Heading upstairs, the spacious primary bedroom has a fitted wardrobe and an en-suite with high quality Roca sanitaryware. There is a separate bathroom, storage cupboard and good-sized bedrooms 2 & 3.


HBF 5 Star Rated Builder New Consumer Code NHBC NHQC

Worting Park, Basingstoke

Plot 46 | £515,000


  • 3 Bedrooms

  • 2 Bathrooms

  • 1085 sq ft

  • Everglade – End - Terrace

Tenure: Freehold

Service Charge: £452.00 P/A

Council Tax: Band Not Available

EPC Rating: A

Property Type: End-Terraced House


Make an enquiry

Available with £15,000 Stamp Duty contribution*

Enlarged view
Images shown are taken from various Cala showhomes or have been generated by computer (for indicative purposes only and are not to be presumed to be entirely accurate.) Showhome images feature fittings, décor, flooring, soft furnishings and landscaping that are not included as standard in a Cala home. Images are used to suggest possible finishes that can be achieved in your home at an additional cost. Please consult a Sales Representative for further details. Some images have been enhanced.

Take a virtual tour of The Everglade

Why not take a virtual tour of our Everglade showhome online today? 

 

Showcasing the high end finish, specification and superb layout you can expect from your home here - you'll love what you see.

 

These virtual tours may be taken from previous Cala showhomes and may be different from the same housetype at Worting Park. Please speak with your Sales Advisor to find out more about the specification and layout.

Arrow up

Thank you.

A Cala sales representative will be in touch soon to discuss your enquiry.