Plot 89: Allan - 3 Bedroom Home

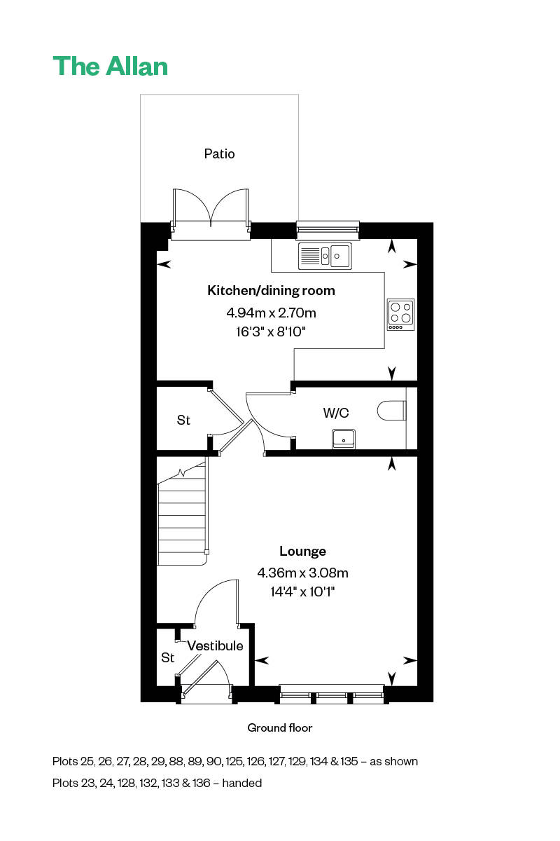
This sophisticated home provides the ideal in flexible family living space. The modern studio-designed kitchen and family/dining area is open plan, enjoying access to the patio via French doors, allowing you to extend your living on a sunny day or when friends are round.

Downstairs you also enjoy a separate (yet interconnecting) lounge, downstairs WC, excellent storage and welcoming vestibule, while on the first floor you’ll be greeted by a spacious upper landing, off which find two double bedrooms and a single (perfect as a home office, nursery or hobby room), all enjoying fitted wardrobes. The Allan’s light and airy ambience is complemented with a high specification family bathroom.


HBF 5 Star Rated Builder New Consumer Code NHBC NHQC

Pinefields, Livingston

Plot 89 | £279,995


  • 3 Bedrooms

  • 1 Bathroom

  • 902 sq ft

  • Allan

Tenure: Freehold

Service Charge: £170.37 P/A

Council Tax: Band E

EPC Rating: B

Property Type: Terrace


Make an enquiry

Let's talk incentives tailored for you

Make our featured home yours

The Allan is a beautiful 3 bedroom home and available with:

★5% deposit paid* (which could equate to a saving of £13,999.75)

And

★Flooring, turf, lights & blinds

*for reservation by 31st October 2025. Terms & conditions apply.

Enlarged view
The Allan - Showhome photography
Photography may have been enhanced in post-production and may include upgrades at additional cost. Computer Generated Images may show features fittings, décor, flooring and soft furnishings which are not fitted as standard in a Cala home. CGIs are used to suggest possible finishes that can be achieved in your home at an additional cost. Please consult a Cala representative for further details.

The Allan Showhome - Virtual Tour

Please note, some design, specification items and finishes may differ.

The Allan Showhome – Video Tour
Arrow up

Thank you.

A Cala sales representative will be in touch soon to discuss your enquiry.