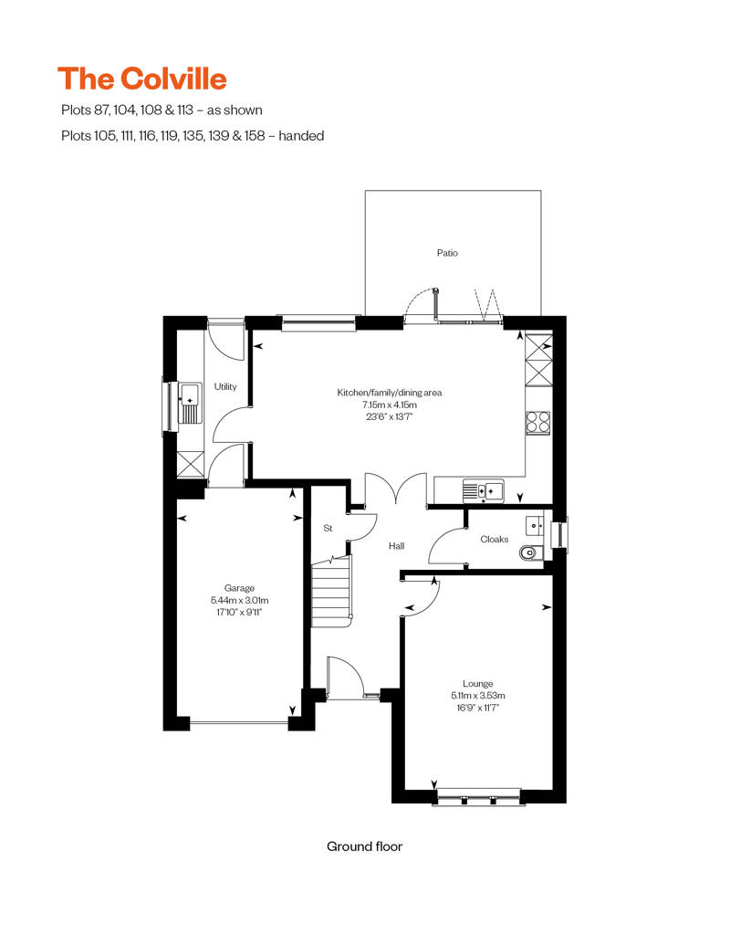
Enjoy a flexible lifestyle with The Colville
With four generous double bedrooms plus an additional study, The Colville is designed around you. Offering the ultimate flexibility for all stages of family life, your additional room is yours to play with.



