Plot 36: Macrae Studio - 5 Bedroom Home

The thoughtfully designed MacRae Studio combines deluxe detached living with the added benefit of a detached double garage with two storeys.

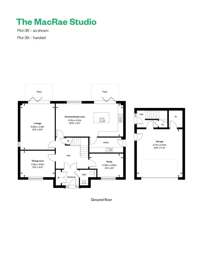
On the ground floor, a vestibule with storage and a cloakroom is the perfect place to greet guests. From here, and accessed via a spacious hallway, is a study, dining room, formal lounge and an open plan kitchen and family/dining area. French doors from the lounge and bi-folding doors from the kitchen further extend the living space onto the patio area and rear garden.

Upstairs is a luxurious bathroom with a separate shower enclosure, and five elegant bedrooms. The impressive master bedroom features an en suite shower room and spacious separate dressing area. Two of the remaining four bedrooms benefit from fitted wardrobes, and one has an en suite shower room.


HBF 5 Star Rated Builder New Consumer Code NHBC NHQC

Ballagan Woods, Killearn

Plot 36 | £799,000


  • 5 Bedrooms

  • 4 Bathrooms

  • 3015 sq ft

  • Macrae Studio

Tenure: Heritable

Service Charge: £480.00 P/A

EPC Rating: B

Property Type: Detached


Make an enquiry
Enlarged view

Take an online tour

Macrae Studio Gallery
Images include photography from previous show homes as well as CGI's (computer generated images), and are used for illustrative purposes only.
Arrow up

Thank you.

A Cala sales representative will be in touch soon to discuss your enquiry.