Plot 29: Ramsay - 5 Bedroom Home

The Ramsay style is a breathtakingly spacious detached home which offers luxury living and all the benefits of a new build home, boasting luxurious and flexible accommodation.

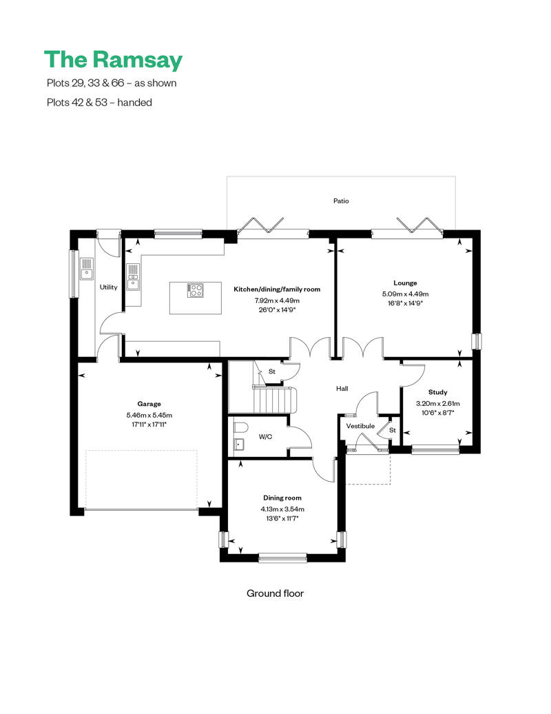
The ground floor boasts a truly impressive amount of space, with multiple hubs for all the family. Enter through the vestibule to a spacious hallway with double doors leading into the formal lounge and airy, open-plan kitchen and family room. The private study downstairs offers the perfect space for home working but could equally make an ideal space for a gym or TV room.

The formal dining room with triple aspect windows creates an ideal space for entertaining guests, with a WC also location downstairs. When not wanting to formally entertain, the designer kitchen offers the ideal setup, with space for a large dining table and more and sleek Nolte fittings, plus induction hob within the central island.

This home is bathed in natural light with large windows and two sets of patio doors - bi-fold doors from the lounge, and bi-fold doors from the kitchen to your rear patio and garden.

Upstairs, you'll find 5 double bedrooms each with fitted bi-fold wardrobes as standard. The main bedrooms comprises an abundance of space with walk-in wardrobes and luxury ensuite with double sinks and large shower.

Storage is no problem with two large storage cupboards on the landing, plus storage cupboard and under-stairs cupboard on the ground floor. The separate utility and integral double garage provide additional space to help keep clutter tucked away!


HBF 5 Star Rated Builder New Consumer Code NHBC NHQC

Ballagan Woods, Killearn

Plot 29 | £745,000


  • 5 Bedrooms

  • 5 Bathrooms

  • 2788 sq ft

  • Ramsay

Tenure: Heritable

Service Charge: £480.00 P/A

EPC Rating: B

Property Type: Detached


Make an enquiry

Save over £30,000 with unmissable incentives

This plot boasts open outlooks to green space. Enjoy the following fantastic offers and look forward to a move this year. Just think, you could be settled in time for Christmas!

• 50% of LBTT fees covered by Cala - saving you over £23,000
• A complete flooring and carpets package included throughout
• Garden ready with patio and turf

Enlarged view

Take an online tour

Discover the essence of true style...

Take a look at our Ramsay homestyle...
Images include photography from previous show homes as well as CGI's (computer generated images), and are used for illustrative purposes only.
Arrow up

Thank you.

A Cala sales representative will be in touch soon to discuss your enquiry.