Find your new home...
Main menu
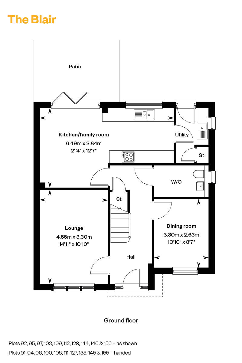
The Blair offers spacious family comfort and clean, contemporary style. An open plan kitchen, dining and family area is further extended on to the patio and rear garden via bi-folding doors, while an adjoining utility room provides practical space.
Ideal for entertaining, The Blair features a separate lounge and dining room. On the first floor and centered around a spacious, galleried landing are four spacious double bedrooms - two of which are en suite - and a luxurious family bathroom.
Storage cupboards throughout the home, as well as a detached garage, providing ample storage space.
Tenure: Freehold
Council Tax: Band G
EPC Rating: B
Property Type: Detached
Make our featured home yours
The Barrie is a spacious 4 bedroom detached home and available with:
★ 5% deposit paid* (which could equate to a saving of £23,499.75)
Plus
★ Flooring & turf
*for reservation by 31st October 2025. Terms & conditions apply.
The Blair at Craighall Village: Winner of House of the Year at the Scottish Home Awards 2025
The Blair at Craighall Village exemplifies modern, sustainable living, making it the ultimate home for modern family living and a range of life stages.
Designed for flexibility, its well-balanced layout maximises every inch of space, enhanced by high specification finishes and seamless indoor-outdoor connectivity. Future-proofed with integration from the Midlothian Heat Network, sustainability is at the forefront of The Blair’s design, delivering reliable, low-carbon heating at a fair price.

Please note some design, specification items and finishes may differ.
A Cala sales representative will be in touch soon to discuss your enquiry.