Plot 208: The Bute – End Terrace - 4 Bedroom Home

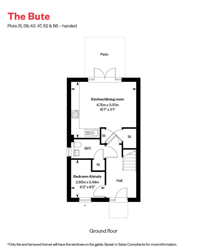
The ground floor of this stunning home features a flexible 4th bedroom/study and an open plan kitchen/family/dining room, complete with Siemens appliances. Beautiful French doors open out to your patio and private garden area, bringing the outdoors in.

A spacious bedroom with fitted wardrobes and additional flexible lounge feature on the first floor, along with your contemporary family bathroom.

On the second floor, you'll find your spacious main bedroom, enjoying luxury en-suite. Bedroom 2 with fitted wardrobes finishes off this stylish home.


HBF 5 Star Rated Builder New Consumer Code NHBC NHQC

Rosebery Wynd, South Queensferry

Plot 208 | £394,995


  • 4 Bedrooms

  • 3 Bathrooms

  • 1314 sq ft

  • The Bute – End Terrace

Tenure: Freehold

Service Charge: £75.89 P/A

Council Tax: Band F

EPC Rating: B

Property Type: Townhouse


Make an enquiry
Enlarged view
Similar Housestyle Photography
Photography may have been enhanced in post-production and may include upgrades at additional cost. Computer Generated Images may show features fittings, décor, flooring and soft furnishings which are not fitted as standard in a Cala home. CGIs are used to suggest possible finishes that can be achieved in your home at an additional cost. Please consult a Cala representative for further details.

Take a virtual tour of our development showhome

Similar in style and layout to our Bute Townhouse, and featuring our high specification, why not take a virtual tour of our interior designed Balvenie Townhouse online today? 

 

Showcasing the high end finish, specification and superb layout you can expect from your home here - you'll love what you see.

Arrow up

Thank you.

A Cala sales representative will be in touch soon to discuss your enquiry.