Plot 9: Barrie - 4 Bedroom Home

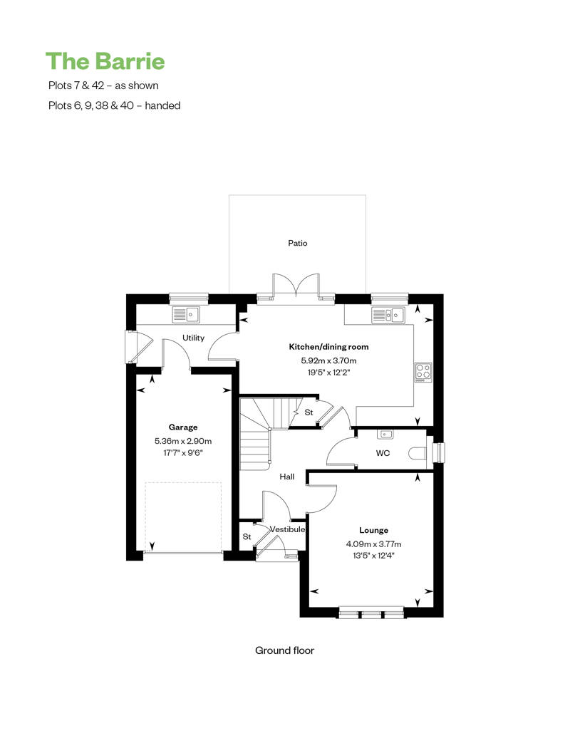
The Barrie offers spacious family comfort and clean, contemporary style. An open plan kitchen/dining area is further extended onto the patio and rear garden via French doors, while an adjoining utility room provides practical space.

On the ground floor, The Barrie also features a welcoming vestibule and hallway, separate lounge positioned to the front of the home, plus a downstairs WC.

On the first floor you’ll find a generous main bedroom with en suite and large fitted wardrobes, while three further spacious bedrooms all with fitted wardrobes and a luxurious family bathroom complete the upper floor.

Storage cupboards throughout the home, as well as an integral garage, providing ample storage space.


HBF 5 Star Rated Builder New Consumer Code NHBC NHQC

Raemoir Park, Banchory

Plot 9 | £395,000


  • 4 Bedrooms

  • 3 Bathrooms

  • 1402 sq ft

  • Barrie

Tenure: Freehold

Council Tax: Band F

EPC Rating: B

Property Type: Detached


Make an enquiry

Let's talk incentives tailored just for you

This detached home is move-in ready and priced at £405,000. With Part Exchange* available, you can secure this home without the stress of selling your current property. This is one of our final homes ready for a 2025 move.

Enlarged view

Step inside the Barrie...

Arrow up

Thank you.

A Cala sales representative will be in touch soon to discuss your enquiry.