Plot 13: Garvie - 5 Bedroom Home

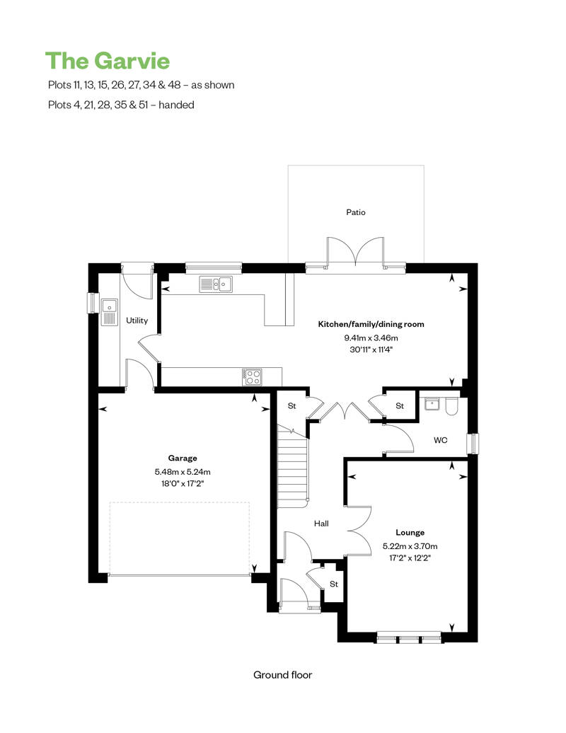
Comprising five spacious bedrooms, two with an en suite, The Garvie has been designed for flexible family living.

From the spacious hallway, a separate formal lounge and the open plan kitchen/dining area are both accessed via double doors.

Upstairs are four elegant and generous bedrooms, two of which are en suite, are completed by a flexible fifth bedroom (which could also be used as a private study for home working, playroom, nursery or teenage snug).

The Garvie is completed by a four-piece family bathroom, downstairs WC, integral garage and private driveway, plentiful storage and handy utility room.


HBF 5 Star Rated Builder New Consumer Code NHBC NHQC

Raemoir Park, Banchory

Plot 13 | £585,000


  • 5 Bedrooms

  • 3 Bathrooms

  • 2088 sq ft

  • Garvie

Tenure: Freehold

Council Tax: Band G

EPC Rating: B

Property Type: Detached


Make an enquiry
Enlarged view

Step inside the Garvie...

Imagine what you could do with this home...
CGI Disclaimer - Computer generated images shown feature fittings, décor, flooring and soft furnishings which are not fitted as standard in a Cala Home. CGI’s are used to suggest possible finishes that can be achieved in your home at an additional cost. Please consult a Cala representative for further details.
Arrow up

Thank you.

A Cala sales representative will be in touch soon to discuss your enquiry.