Plot 24: Garvie - 5 Bedroom Home

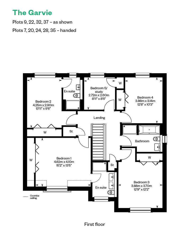
Comprising five spacious bedrooms, two with an en suite and impressive wardrobes, The Garvie has been designed for flexible family luxury.


Featuring double doors, the large lounge is accompanied by an open plan kitchen and dining area with french doors to the patio and rear garden, a separate utility room, cloakroom and integral double garage. All complemented with a family bathroom, plus the fifth bedroom can be used as a private study for home working.


HBF 5 Star Rated Builder New Consumer Code NHBC NHQC

Burnland Meadows, Westhill

Plot 24 | £549,950


  • 5 Bedrooms

  • 3 Bathrooms

  • 2088 sq ft

  • Garvie

Tenure: Freehold

Service Charge: £304.08 P/A

Council Tax: Band G

EPC Rating: B

Property Type: Detached


Make an enquiry

Step inside The Garvie...

Flooring
Turf
Imagine what you could do with this home...
CGI Disclaimer - Computer generated images shown feature fittings, décor, flooring and soft furnishings which are not fitted as standard in a Cala Home. CGI’s are used to suggest possible finishes that can be achieved in your home at an additional cost. Please consult a Cala representative for further details.
Enlarged view
Arrow up

Thank you.

A Cala sales representative will be in touch soon to discuss your enquiry.