Plot 13: Harlton - 4 Bedroom Home

4 bedroom detached home with a carport

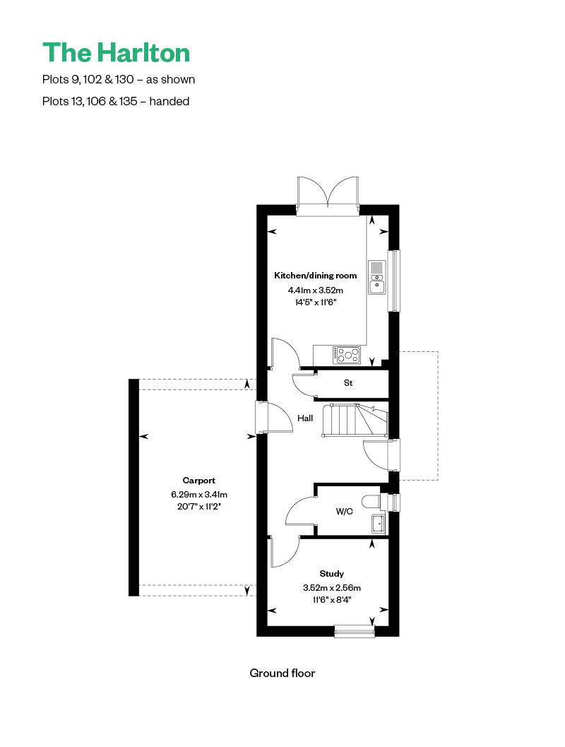
Enjoy flexibility and freedom on three floors, with a fresh and light feel throughout your family home. Down on the ground floor, the well-appointed kitchen/dining room opens out into your garden through patio doors, and there’s a separate study or den – to the front. Your bikes and car have their own places too, with an integrated cycle store and carport.

As you move upstairs you realise just what a breath of fresh air this home is. The first floor landing opens to a spacious sitting room through smart folding doors. Two bedrooms, a family bathroom and a handy utility room complete the floor. On the second floor, there’s a roof terrace – perfect for sipping your morning coffee in the sun - along with an en-suite bedroom and another bedroom


HBF 5 Star Rated Builder New Consumer Code NHBC NHQC

Netherhall Gardens, Cambridge

Plot 13 | £879,950


  • 4 Bedrooms

  • 2 Bathrooms

  • 1629 sq ft

  • Harlton

Tenure: Freehold

Service Charge: £256.00 P/A

Council Tax: Band Not Available

EPC Rating: B

Property Type: Detached


Make an enquiry

Secure this home with upgrades included and 5% deposit contribution*

Enjoy having your dream home benefitting upgrades including: Amtico Spacia flooring and carpets throughout, silestone work surface to kitchen and turf to rear garden.

This home is available with 5% deposit contribution*

*5% deposit contribution available on plot 13 at Netherhall Gardens, for reservations before the 31st October 2025. This package is available at full asking price and not in conjunction with any other service or incentive unless agreed by us at time of reservation.

Enlarged view
Images shown are taken from various Cala showhomes or have been generated by computer (for indicative purposes only and are not to be presumed to be entirely accurate.) Showhome images feature fittings, décor, flooring, soft furnishings and landscaping that are not included as standard in a Cala home. Images are used to suggest possible finishes that can be achieved in your home at an additional cost. Please consult a Sales Representative for further details. Some images have been enhanced.
Arrow up

Thank you.

A Cala sales representative will be in touch soon to discuss your enquiry.