Plot 10: Orwell - 4 Bedroom Home

4 bedroom detached home with a carport

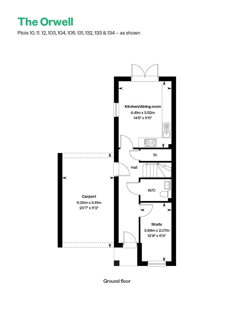
Enjoy flexibility and freedom on three floors, with a fresh and light feel throughout your family home. Down on the ground floor, the spacious, dual aspect kitchen/dining room opens out into your garden through patio doors, and there’s a separate study/den to the front, ideal for that homework session, for working from home or just for playing in. Your bikes and car have their own places too, with an integrated cycle store and car port.

The first floor is similarly impressive, with the landing opening out to a generous, light-filled sitting room through folding doors. Bedrooms 2 and 4 are both of a good size, and are complemented by a handy utility room and a family bathroom.

It’s the second floor that perhaps shines the most though – quite literally in the case of the roof terrace, the perfect place for enjoying a coffee in the morning sun. Good-sized bedroom one has an en-suite and built-in wardrobes, while bedroom three is also well-proportioned and overlooks the garden at the rear.


HBF 5 Star Rated Builder New Consumer Code NHBC NHQC

Netherhall Gardens, Cambridge

Plot 10 | £879,950


  • 4 Bedrooms

  • 2 Bathrooms

  • 1608 sq ft

  • Orwell

Tenure: Freehold

Service Charge: £261.00 P/A

Council Tax: Band Not Available

EPC Rating: B

Property Type: Detached


Make an enquiry

Secure this home with upgrades included and 5% deposit contribution*

Enjoy having your dream home benefitting upgrades including: Amtico Spacia flooring and carpets throughout, silestone work surface to kitchen and turf to rear garden.

This home is available with 5% deposit contribution*

*5% deposit contribution available on plot 10 at Netherhall Gardens, for reservations before the 31st October 2025. This package is available at full asking price and not in conjunction with any other service or incentive unless agreed by us at time of reservation.

Enlarged view
Images shown are taken from various Cala showhomes or have been generated by computer (for indicative purposes only and are not to be presumed to be entirely accurate.) Showhome images feature fittings, décor, flooring, soft furnishings and landscaping that are not included as standard in a Cala home. Images are used to suggest possible finishes that can be achieved in your home at an additional cost. Please consult a Sales Representative for further details. Some images have been enhanced.
Arrow up

Thank you.

A Cala sales representative will be in touch soon to discuss your enquiry.